Firestone

Déconstruction et assainissement
du site pollué

CHF 675'000.-

Firestone

Firestone
Rue de la Pierre-à-Mazel 1
2000 Neuchâtel

Déconstruction et assainissement
du site pollué

CHF 675'000.-

Maître de l’ouvrage

Société Gerritzen et Gueissaz
Chemin du Levant 7
1005 Lausanne

Mandataires

Architecte

Cura Partners SA
Avenue des Alpes 125
2000 Neuchâtel

Suivi environnemental

RWB Neuchâtel SA
Rue du Crêt-Taconnet 12A
2000 Neuchâtel

 

Firestone
Rue de la Pierre-à-Mazel 1
2000 Neuchâtel

 

Nature des travaux

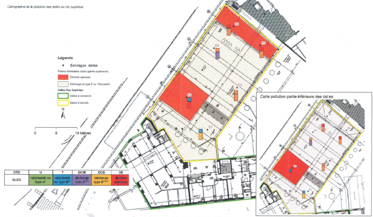
Assainissement du bâtiment à déconstruire par désamiantage, enlèvement de peintures au plomb et assainissement par zones et épaisseurs des bétons pollués aux hydrocarbures.
Assainissement de sols pollués.

Particularités du site

Site urbain confiné.
Route à proximité.

Période d’exécution

Assainissement et déconstruction : août à octobre 2016
Assainissement bétons et sols pollués : octobre 2016

Ressources humaines et inventaire

Ressources humaines

1 Contremaître
2-4 Machinistes
3-5 Ouvriers qualifiés et de la construction

Engins principaux

1 Pelle hydraulique sur chenilles 40 to
1 Pelle hydraulique sur chenilles 15 to
1 Pelle hydraulique sur chenilles 5 to
2 Pelles hydrauliques sur chenilles 1.5 to
1-2 Chargeuses compactes 3.5 to
1 Dumper 3.5 to

Quantités principales

Bâtiment déconstruit 6'000 m³
Assainissement de bétons pollués 500 to
Assainissement de sols pollués 400 m³

Réf. CH1273

contactez-nous.

Pour toute information, obtenir un devis ou pour toutes autres demandes, n’hésitez pas à prendre contact avec nous en cliquant sur le lien ci-dessous.